Deck Capacity
POINT LOAD VS. DISTRIBUTED LOAD
Deck capacity can be defined in two load forms: (1) a point load (or concentrated load) and (2) a distributed load. A point load is a single load concentrated on a very small area. It is common practice to measure point loads in units of weight, such as pounds or kilograms. The footing under this load can then be defined over the area required to support it, such as a square foot or a square meter. A distributed load is a load that can be applied over an entire area, or every square foot. This load is measured in pounds per square foot (psf) or kilopascals (kPa).
Most deck or conventional barges come with a (distributed) deck bearing capacity ranging from 1,300 to 5,000 psf. Flexifloat® S-50 & S-70 decks have a distributed deck bearing capacity of 5,000 psf. This means you can place 5,000 lbs. on every square foot of the deck as long as you have the stability and buoyancy to stay upright and afloat.
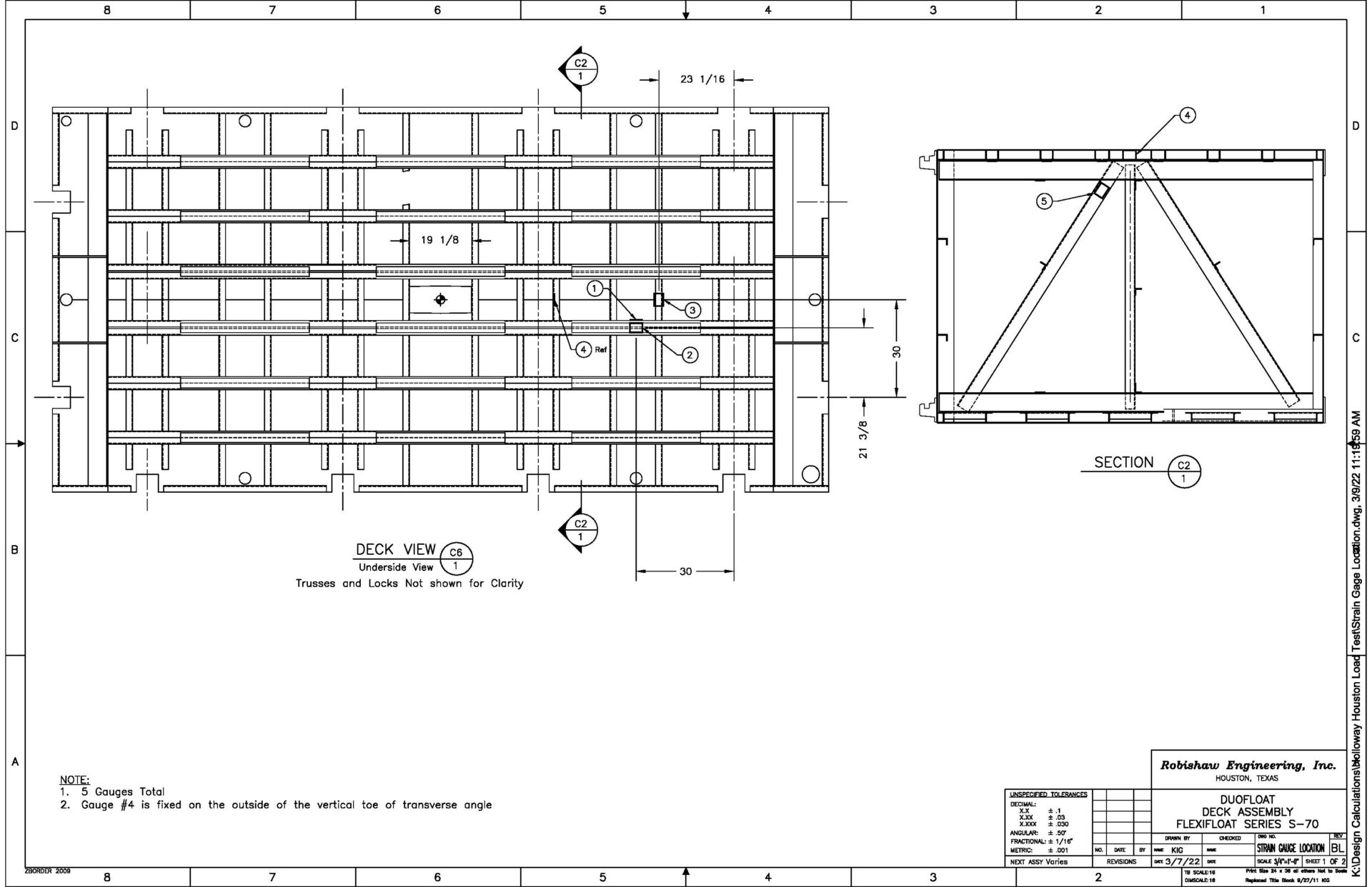
Although a distributed load rating is the most useful and relevant approach to rate deck capacity, a point load rating is sometimes requested. Flexifloat commissioned Holloway Houston, Inc. to perform a certified load test simulating a point load in excess of 35,000 lbs. in a single square foot area of the deck. The test was performed on the weakest portion of an S-70 deck, between internal trusses over a single longitudinal deck support. Five strain gauges monitored the forces realized by the float’s structure during the testing, and steel members and welds were examined after the testing for any signs of damage. This independently verified testing supports and validates our own finite element analysis (FEA) in determining an allowable point load, or concentrated load, of 25,000 lbs. placed in a single square foot.
Whether it is a concentrated load or a distributed load, timber mats should be used under tracked equipment, outriggers and other heavy steel structures to prevent localized damage to the steel decks.
Please contact Flexifloat if you are considering supporting a large load in a relatively concentrated area on a Flexifloat® deck. At no charge, our engineers will assist you in determining the best method to safely support and distribute the load on Flexifloat® equipment.
