A. L. Helmcamp replaces Trinity River bridge
Houston County, Texas
A. L. Helmcamp, Inc. (ALH) purchased both Flexifloat Series S-50 and S-70 equipment to support heavy construction machinery on the Trinity River to complete a $27.8 million bridge replacement project in Houston County, Texas.
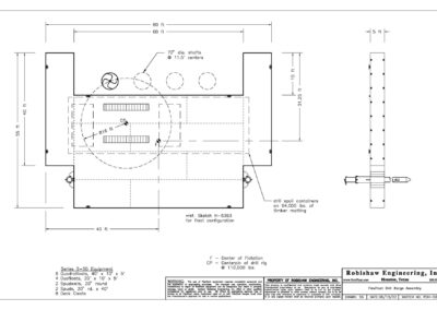
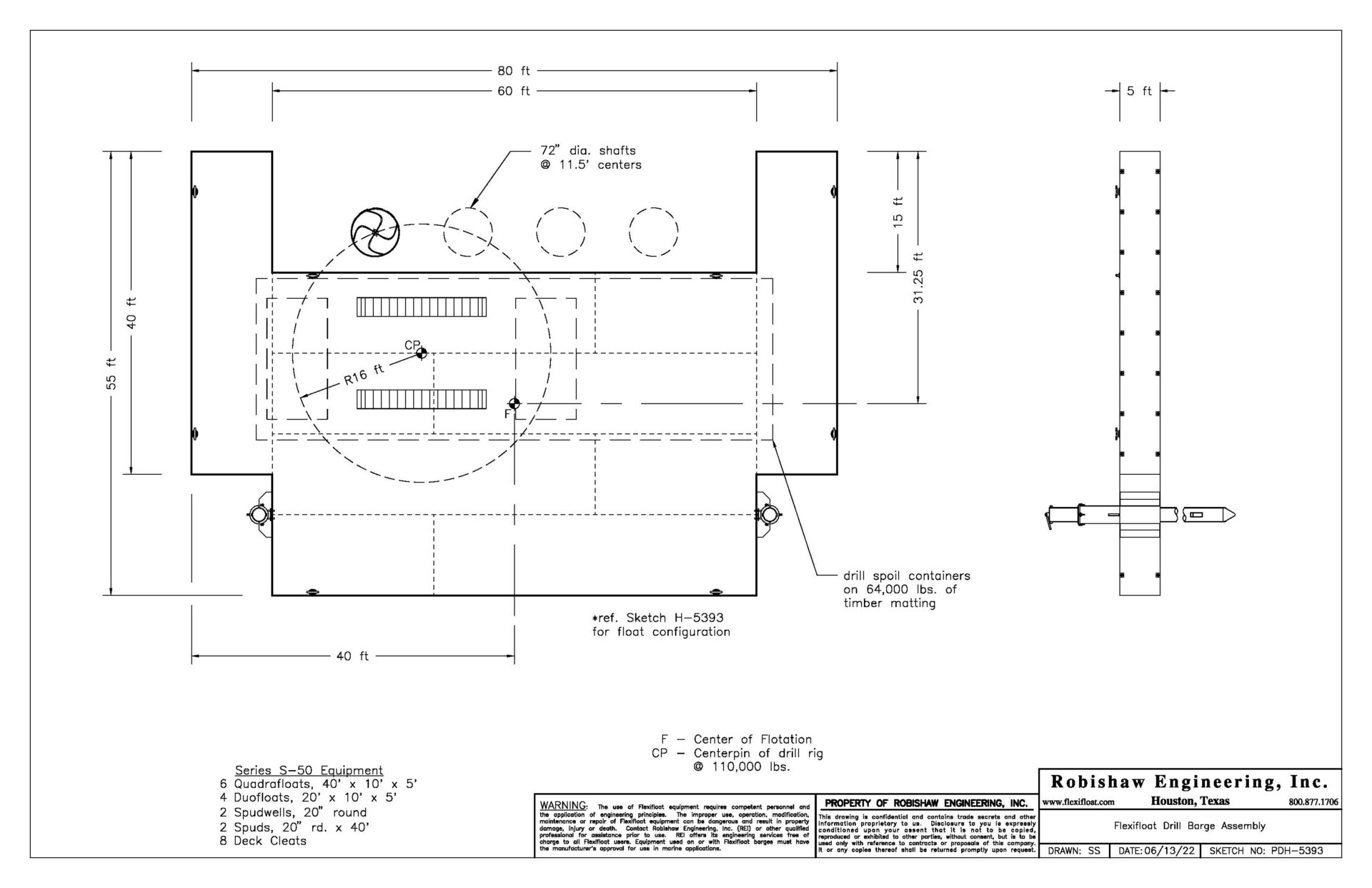
The S-50 equipment was first configured into a “U”-shaped spud barge to support a 110,000-pound track-mounted rig drilling 72-inch diameter pier shafts. The stable, 80-foot-wide Flexifloat configuration was designed to surround the ensuing bent within its 60-foot opening allowing the machine to drill each of the four 72-inch diameter shafts spaced at 11.5-foot centers without having to reposition the barge.
Meanwhile, the S-70 Flexifloats were assembled into an 80’ x 60’, “T”-shaped spud barge to support a 306,000-pound Kobelco CK1600-II crawler crane equipped with 140 feet of boom. During the initial phase, the 160-ton capacity crane was used alongside the drill barge handling rebar, formwork and concrete buckets.
For the steel erection phase, the S-50 floats were reconfigured into a 40’ x 60’ spud barge to support two manlifts for splicing the steel girders together and the S70 was rearranged into a 60-foot-wide assembly to better fit the site constraints. The crane was then used to set 130-foot-long steel girders on the newly built piers. ALH also used the S-50 floats in a 40’ x 40’ configuration to act as a floating bent to temporarily support the ends of multiple cantilevered beams before they were to be spliced together.
The flexibility of the Flexifloat equipment was utilized throughout this project by being able to rearrange the floats into different configurations to accommodate varying loading conditions and equipment, and adapting to changing site constraints.
During this job ALH was awarded another bridge project in Central Texas in which they eventually transferred the Flexifloat equipment to tackle their next marine construction challenge. Free of charge, Robishaw engineers supported ALH on both projects with numerous buoyancy and static stability calculations, and barge designs along with recommending marine construction methods.