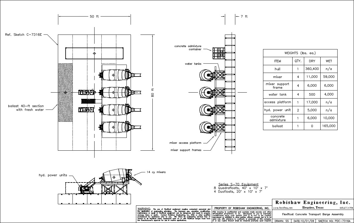
Concrete Mixer Transport Barge

Transport on Lock & Dam Project on the Ohio River

Olmsted, IL

Washington Group/Alberici used a Series S-70 50′ x 80′ transport barge to support a concrete mixer plant at its U. S. Army Corps of Engineers Olmsted Lock and Dam project in Illinois. Ballasting was used to balance the asymmetric loading of the mixers.

Questions? talk to our application engineers.