Hampton Harbor Inlet North Jetty Project

Luciano Excavation utilizes 2 Flexifloat jack-ups

Hampton, NH

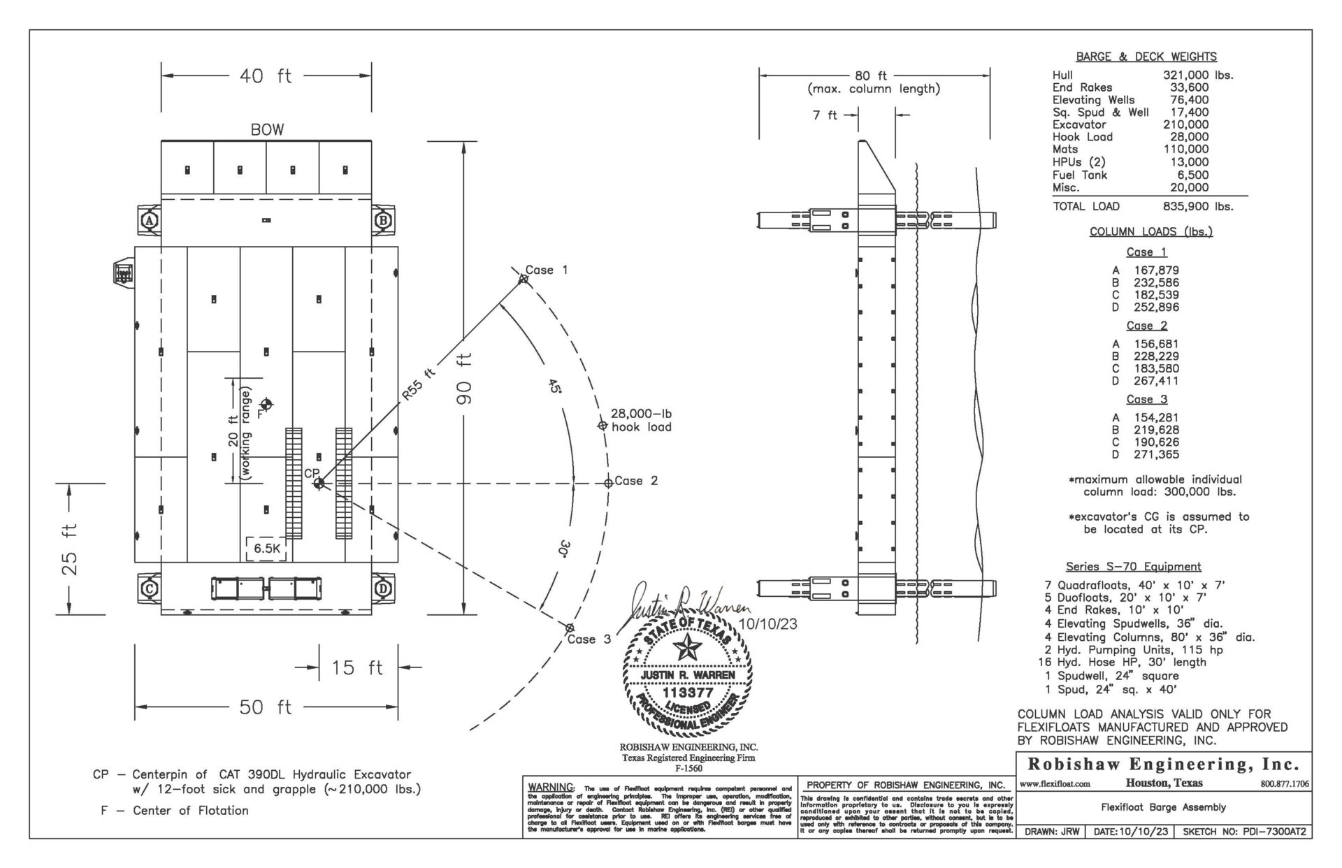
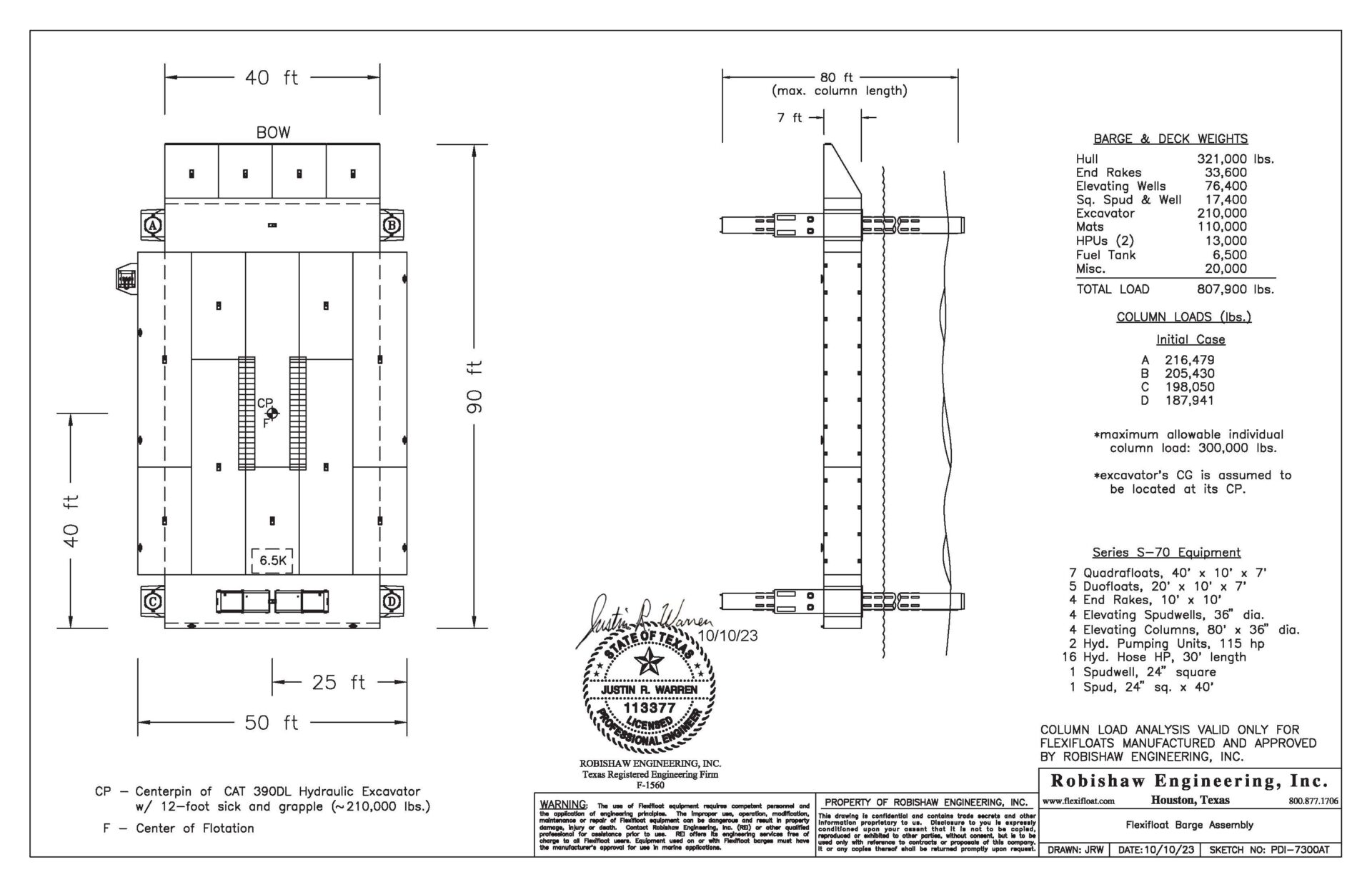
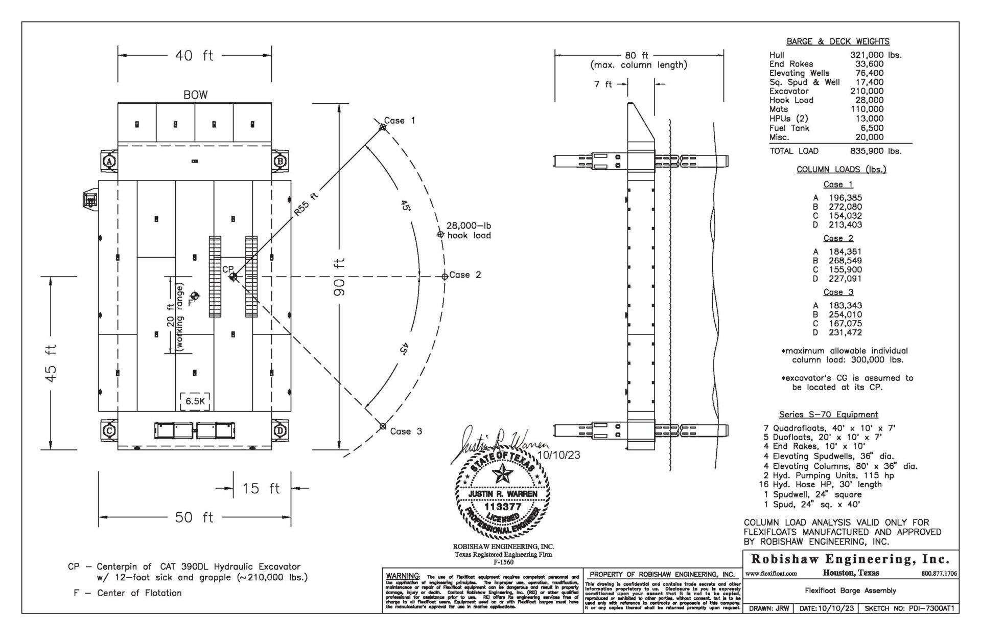
Lucianos Excavation, Inc. chartered two Flexifloat Self-Elevating Platforms (SEP) from Phoenix Marine to support CAT 390D excavators working on the Hampton Harbor Inlet North Jetty.  Repairs and reconstruction of the jetty was necessary due to vessel allision and winter storms.  The work included the removal, rehandling, and resetting of existing stone along with adding 11,000 tons of new 3 to 10 ton armor stone.  The Flexifloat SEPs allowed them to work safely during low tide without grounding while also keeping them out of the surf.

The Flexifloat Self-Elevating Platform (SEP) is a highly portable modular “jack-up” barge that can be elevated out of the water to provide a stable work platform in moderate waves, current, and tidal conditions.  The Flexifloat SEP can operate in land-locked or shallow water areas that are inaccessible to conventional jack-up platforms.  The Flexifloat SEP is assembled from standard S-70 Flexifloat modules and Self-Elevating Spudwells and Column attachments.  The elevating system is hydraulically activated and manually controlled.  Each Elevating Spudwell incorporates a rotating lift/lock mechanism which engages external lugs on its respective Elevating Column and permits raised platforms to be secured at any elevation.

Questions? talk to our application engineers.